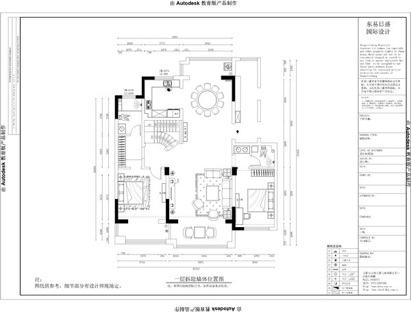
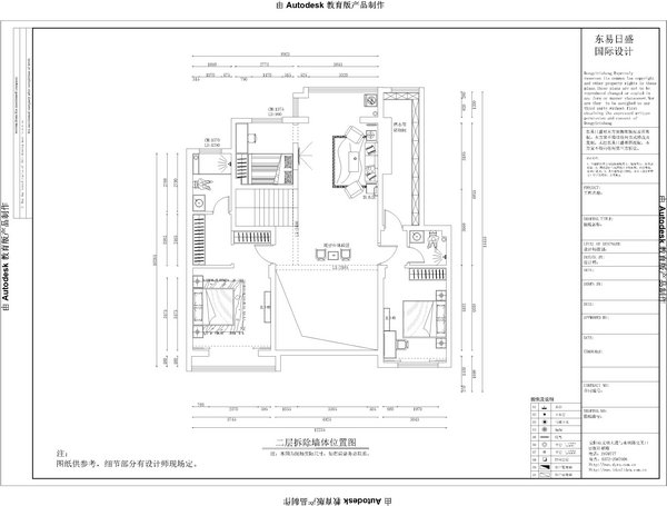
本次设计为二层复式,室内部分大致包括会客区域,餐饮区域,起居室,卫浴区和休闲区。
设计总运用了大量木质家具与造型,更彰显了业主的地位与品位,则使的空间划分更具有艺术感,不显得突兀。本次设计以高贵,典雅为主要路线,但是其中却不乏浪漫与温馨,可以是业主在浪漫与惬意的环境中愉快的生活与享受。细腻精致的空间设计不是徒有形式上的演变、元素上的转换,深究细理,更多的是从文化背景出发,设计出合乎主人气质的现代生活的质性,并于细节处彰显。此项目中,设计师在形式与内涵上做到了很好的拿捏,将建筑与室内设计元素推拉出无限可能的延伸性,奢华中链接着家的独有韵味,低调中彰显家的朦胧与浪漫。设计师满足主人心灵渴望之空间氛围,并将其底蕴发挥到。


















